MM VILLA SAN GIOVANNI - LIBERO DAL 14 LUGLIO

In affitto
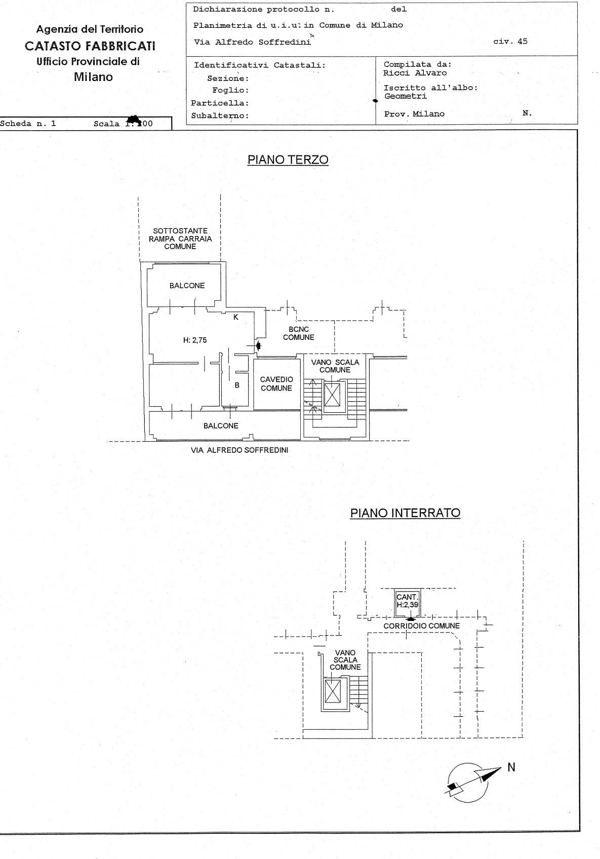
Milano (MM Villa San Giovanni) - via Soffredini, 45
950 €
2 locali
Categoria
55
m2
2
Locali
1
Camere
1
Bagni
Descrizione
VIALE MONZA - Via Soffredini - LIBERO DAL 14 LUGLIO
In palazzo di recente costruzione con ascensore proponiamo, al terzo piano, bilocale di circa 55 mq, CON SOLO CUCINA ARREDATA.
L'appartamento è composto da: ingresso, soggiorno con cucina a vista, camera da letto matrimoniale, bagno con box doccia, ampio balcone e terrazzo di 15 mq oltre cantina di pertinenza.
Doppi vetri. Predisposizione Aria condizionata.
Riscaldamento e acqua centralizzata a gestione autonoma.
Posto bici.
A 300 metri dalla fermata della metropolitana rossa (linea 1) di "VILLA SAN GIOVANNI".
Richiesta mensile: € 950,00 per canone + € 130,00 per spese condominiali incluso anticipi per consumo di riscaldamento e acqua calda.
POSSIBILITA' BOX A PARTE A € 50,00 SE PRESO INSIEME ALL'APPARTAMENTO.
POSSIBILITA' CONTRATTO SOCIETA'.
Caratteristiche principali
Codice:
A012397
Città:
Milano (MM Villa San Giovanni)
Categoria:
2 locali
Spese condominiali:
1.560 € / anno
Locali:
2
Camere:
1
Bagni:
1
Mq:
55
Balconi:
1
Terrazzi:
1
Piano:
3
Classe energetica:
B
27,67 kWh/m²a
Life Style:
Quiet
Stato Immobile:
Ristrutturato
Grado:
Medio
Lati Liberi:
1
Giardino:
Cortile
Arredi:
Solo Cucina
Tipo Soggiorno:
Soggiorno
Tipo Cucina:
A Vista
Riscaldamento:
Centralizzato
Tipo Riscaldam.:
Caldaia
Tipo Impianto:
Radiatori
Fonte Energetica:
Metano
Acqua Calda:
Centralizzata
Raffrescamento:
Predisposizione
Infissi:
Metallo Doppio Vetro
Serramenti:
Ottimo
Persiana:
Tapparella PVC
Pavim. Giorno:
Gres Porcellanato
Pavim. Notte:
Gres Porcellanato
Pavim. Cucina:
Gres Porcellanato
Pavim. Bagno:
Gres Porcellanato
Cauzione:
Tre Mesi
Canoni Anticipati:
Tre Mesi
Tipo Contratto:
4+4 Anni
Tipo Registr.:
Tradizionale
Accessori
Ascensore
Doppi Vetri
Pannelli Solari
Porta Blindata
Zanzariere
Mappa
Distanze
Mezzi di trasporto
Fermata metro-bus-tram200 m
Planimetrie
Cookie preference