2 bedroom apartment for sale in Milano

for sale
Milano (NoLo (Nord di Loreto)) - VIA PADOVA, 72
215,000 €
2 bedroom apartment
Category
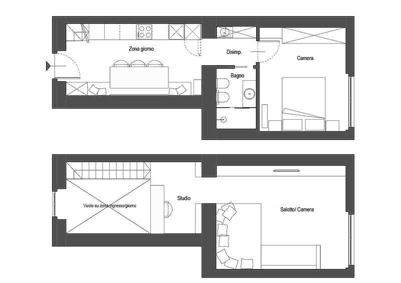
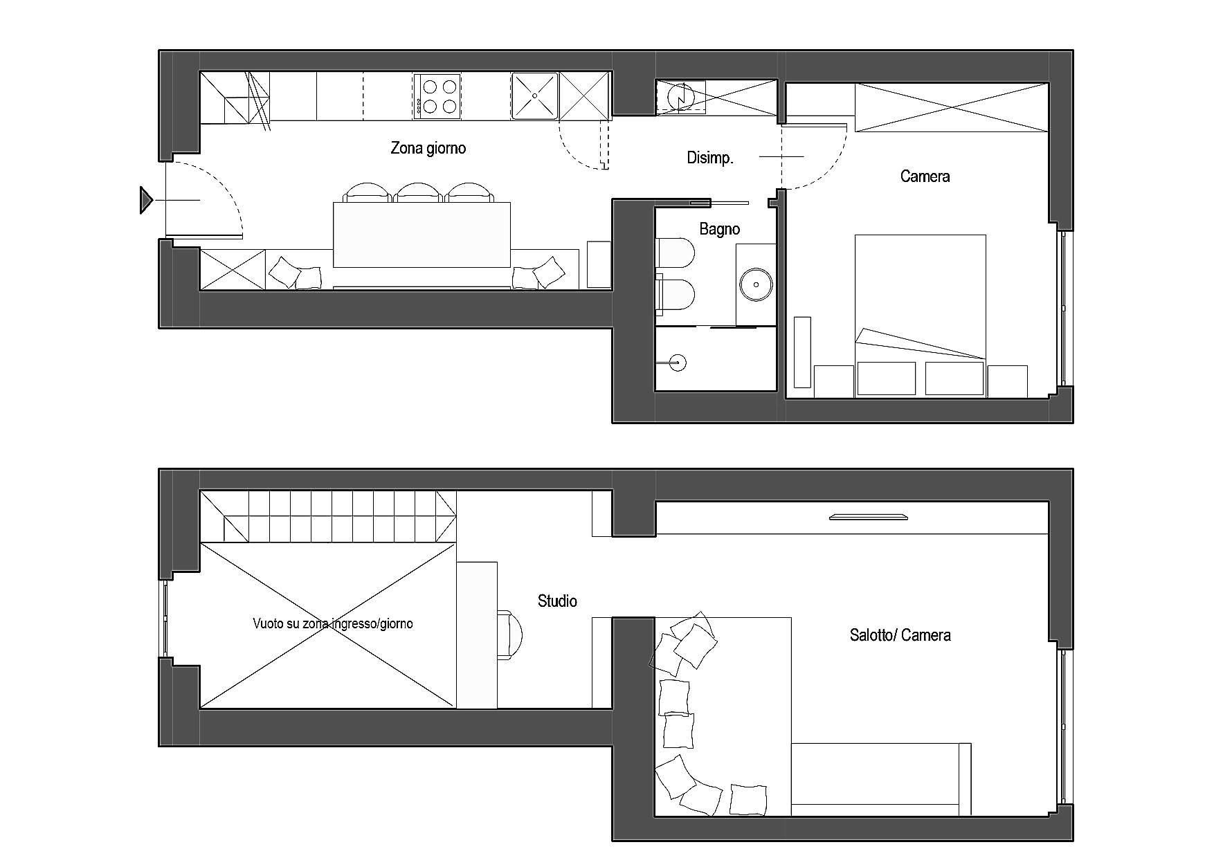
50
m2
3
Locals
2
Bedrooms
1
Bathrooms
Primal Features
Code:
V001541
City:
Milano (NoLo (Nord di Loreto))
Category:
2 bedroom apartment
Expanses:
2,000 € / year
Locals:
3
Bedrooms:
2
Bathrooms:
1
Sqm:
50
Floor:
Mezzanine
Energetic class:
F
321.18 kWh/m²a
Property Conditions:
Renovated
Rank:
Medium
Free Sides:
2
Garden:
Cortile
Furniture:
Furnished
Type living:
Living room
Kitchen:
View Kitchen
Heating:
Central
Heating Type:
Boiler
Type of heating system:
Radiator heating
Energy source:
Natural Gas Heating
Hot Water:
Independent
Fixtures:
Wooden double glazed
Doors:
Excellent
Blind:
PVC Blinds
Floors Living Room:
Parquet
Floors Bedrooms:
Parquet
Floors Kitchen:
Parquet
Floors Bathroom:
Ceramic
Accessories
Air Conditioning
Elevator
Double Glazing
Armored door
Caretaker / Guardian
Video Intercom
Map
Video
Floorplans
Cookie preference