1 local en renta la Milano

en renta
Milano (S.Ambrogio/S.Vittore/S. Agostino) - via Novati, 2
880 €
1 local
Categoría
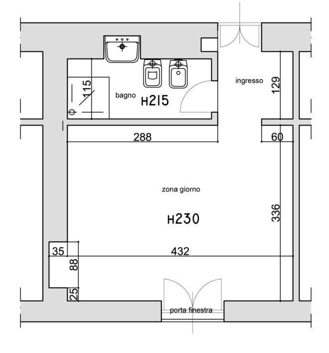
30
m2
1
Habitaciones
1
Baños
Características principales
Código:
A012116
Ciudad:
Milano (S.Ambrogio/S.Vittore/S. Agostino)
Categoría:
1 local
Costes de mantenimiento:
600 € / año
Habitaciones:
1
Baños:
1
Mq:
30
Piso:
3
Año:
1900
Clasificación de energía:
G
189,31 kWh/m²a
Estilo de vida:
Tranquilo
Estado del edificio:
Renovado
Grado:
Medio
Posición:
Centro
Lados Libres:
1
Muebles:
Amueblado
Cocina:
A vista
Calefacción:
Autonóma
Tipo de Calefacción:
Caldaia
Tipo Impianto:
Radiadores
Fonte Energetica:
Metano
Agua Caliente:
Independiente
Enfriamiento:
División
Materiales:
Doble acristalamiento de madera
Puertas:
Excelente
Persianas:
Persianas de madera
Pisos Sala:
Parquet
Pisos Habitaciones:
Parquet
Pisos de Cocinas:
Parquet
baño de la planta:
Cerámico
Fianza:
Tres meses
Pago hecho por adelantado:
Un Mes
Tipologia de contrato:
2+2 Años
Tipo de registro:
Cupón seca
Accesorios
Acondicionador del aire
Cristal doble
Mapa
Panímetros
Cookie preference